Villa singola in vendita

Balestrate, Contrada Settipani
€ 110.000
3 locali 3 locali
90 Mq 90 Mq
2 bagni 2 bagni

Villa singola in vendita

Balestrate, Contrada Settipani

Descrizione annuncio

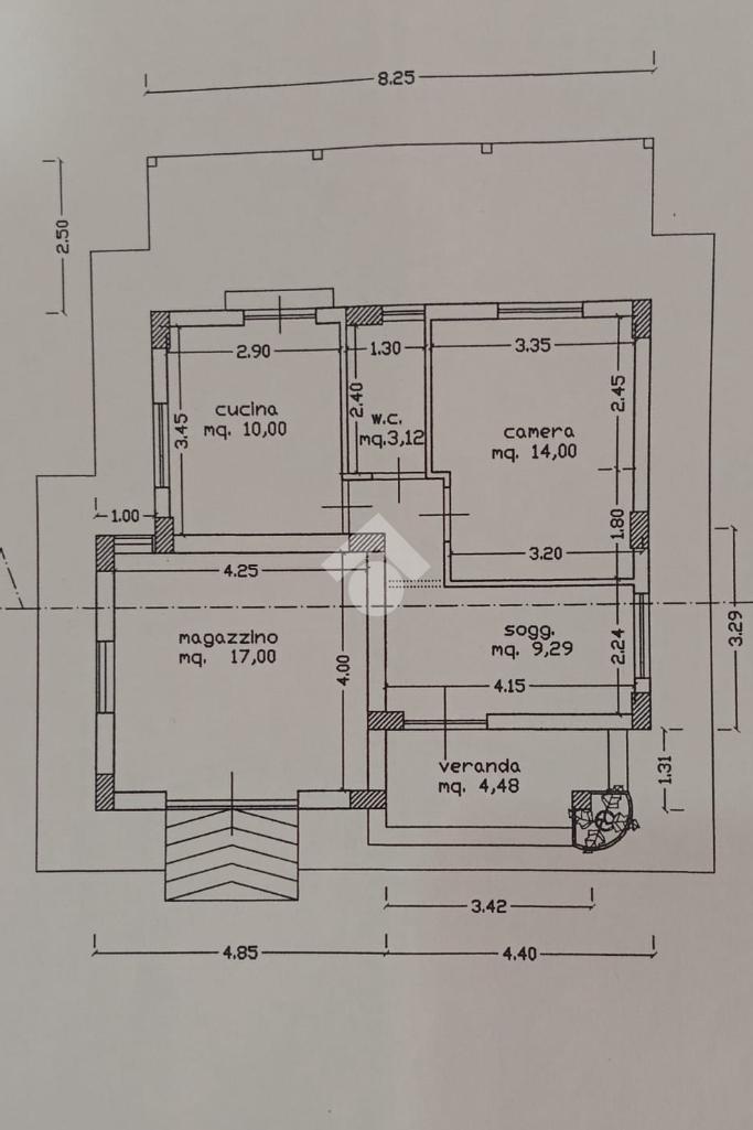
A pochissima distanza dal paese di Balestrate, villa singola allo stato grezzo con 4200 metri quadrati di pertinenza.

L'immobile è in corso di costruzione, per cui è possibile apportare delle modifiche e rifinirlo a proprio piacimento.

Il progetto approvato prevede la realizzazione al piano terra di una cucina, bagno, soggiorno e camera da letto, mentre una parte sarà da destinarsi a magazzino.

È possibile visionare l’immobile tutti i giorni previo appuntamento telefonico, chiamando o inviando un messaggio WhatsApp ai numeri indicati.

Il nostro franchising mette a disposizione dei propri clienti un consulente specializzato nella mediazione creditizia e assicurativa.

Contattateci per richiedere una consulenza gratuita e scoprire la soluzione più adatta alle vostre esigenze.

Mostra tutto

Nelle vicinanze

Trasporto pubblico Trasporto pubblico
Balestrate
Balestrate
890 m
Trappeto
Trappeto
2,2 Km
Trasporto pubblico
700 m
Scuole Scuole
Istituto Comprensivo Rettore Filippo Evola - plesso Professor Domenico Tuzzo
890 m
Istituto Comprensivo Rettore Filippo Evola
1,3 Km
Istituto Comprensivo Rettore Filippo Evola - plesso Aldo Moro
1,3 Km
Istituto Comprensivo Rettore Filippo Evola - plesso Danilo Dolci
2,8 Km
Farmacia Farmacia
D'Arrigo Antonina
1,0 Km
Farmacia Gioia
2,6 Km
Supermercati Supermercati
Conad
1,3 Km
Sisa
1,4 Km
Maxi Like
2,5 Km
Negozi Negozi
Mariagrazia Albano
1,0 Km
Fashion Store
1,1 Km
Negozi
1,3 Km
Panificio Mulè
1,4 Km
I Sapori del Grano
2,4 Km
Bar Bar
Bar
2,1 Km
Cocktail Pub
2,4 Km
Ristoranti Ristoranti
Squalo
490 m
Onda azzurra
540 m
Ristoranti
1,1 Km
Eo Winebar
1,1 Km
La Piazzetta
1,1 Km
Mostra tutto

Caratteristiche

Rif.:
61102296
Piano:
1 di 2 (Piano terra con giardino)
Posti auto:
5
Camere da letto:
2
Arredamento:
Assente
Condizionamento:
Autonomo
Mostra tutto
Prezzo Prezzo
€ 110.000
Prezzo box Prezzo box
€ 1
Rata mutuo Rata mutuo
€ 518 / mese
Spese annue Spese annue
€ 1
Proponi il tuo prezzoProponi il tuo prezzo

Classe Energetica

G
G
G
G
G
G
G
G
G
Anno di costruzione:
2017
Riscaldamento:
Autonomo
Tipo impianto:
Ad aria
Tipo alimentazione:
Aria

Ti interessa visionare l'immobile?

Fissa un appuntamento  Fissa un appuntamento

Richiedi informazioni

Clicca su Leggi per aprire l'informativa
* Questi campi sono obbligatori

Calcola il tuo mutuo

Semplice e senza impegno
Anticipo

( % )
Mutuo

( % )

pochi semplici passi

inserisci i tuoi dati
Questionario completato
Grazie per aver richiesto un appuntamento senza impegno con un nostro Consulente del Credito e Assicurativo.

Hai inserito correttamente tutti i dati necessari e a breve riceverai una e-mail con un link da convalidare per inviare i tuoi dati.
Affiliato
Balestrate Casa Srl
Via Madonna del Ponte, 50 90041 Balestrate (PA)

Il nostro staff


  • Giorgio Contino
    Collaboratore

  • Valentina Caruso
    Coordinatrice

  • Simona Previti
    Collaboratrice

  • Maria Elena Galante
    Affiliata
Via Madonna del Ponte, 50 90041 Balestrate (PA)
Zona: Balestrate
Mostra su mappa
Orari: Dal Lunedì al Venerdì 09:00 -13:00 15:30 - 19:30 Sabato 09:00- 13:00
Affiliato
Balestrate Casa Srl
Via Madonna del Ponte, 50 90041 Balestrate (PA)

2026 Tecnocasa Franchising S.p.A. - P. IVA 08365160152 - Via Monte Bianco 60/A 20089 Rozzano (MI). Ogni agenzia ha un proprio titolare ed è autonoma. Privacy policy | Policy utilizzo | Cookie policy