5 locali in vendita

Partinico, Via Tenente Ignazio Bonura
€ 110.000
Prezzo aggiornato
5 locali 5 locali
150 Mq 150 Mq
2 bagni 2 bagni

5 locali in vendita

Partinico, Via Tenente Ignazio Bonura

Descrizione annuncio

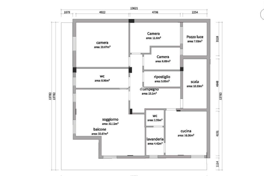
In zona servita e comoda ai principali servizi di Partinico, proponiamo appartamento situato al terzo piano di un piccolo stabile composto da sole tre unità abitative, non dotato di ascensore.

L’immobile, in condizioni originali ma ben conservato, presenta una distribuzione interna funzionale.
Dalla scala condominiale si accede ad un ampio corridoio che separa in modo ottimale la zona giorno dalla zona notte.

La zona giorno comprende una cucina abitabile, adiacente ad un pratico locale ideale come lavanderia e ad un bagno di servizio. Completano l’area giorno un luminoso e spazioso salone, con accesso al balcone angolare, nel quale è presente anche il terrazzino.

La zona notte è composta da una camera matrimoniale, due camerette, un bagno con vasca e un comodo ripostiglio.

Grazie alla doppia esposizione angolare, tutti gli ambienti risultano particolarmente luminosi e offrono piacevoli vedute sul mare e sulle montagne.

È possibile visionare l’immobile tutti i giorni previo appuntamento telefonico, chiamando o inviando un messaggio WhatsApp ai numeri indicati.

Il nostro franchising mette a disposizione dei propri clienti un consulente specializzato nella mediazione creditizia e assicurativa.

Contattateci per richiedere una consulenza gratuita e scoprire la soluzione più adatta alle vostre esigenze.

Mostra tutto

Nelle vicinanze

Trasporto pubblico Trasporto pubblico
Trasporto pubblico
2,2 Km
Partinico
Partinico
2,2 Km
Ricariche auto elettriche Ricariche auto elettriche
EnelX Conad c/o C.C. La Fontana
1,7 Km
Corsitti Sede Enel | EnelX
1,9 Km
Scuole Scuole
Scuole
310 m
Liceo Savarino
650 m
Farmacia Farmacia
Grasso
1,1 Km
Parafarmacia Conad
1,8 Km
Ospedali Ospedali
Ospedale civico di Partinico
260 m
Supermercati Supermercati
EuroSpin
760 m
Lidl
800 m
Conad
1,8 Km
Negozi Negozi
Vendita Nuovo e Usato
1,0 Km
Angello
1,0 Km
M. di Trapani
1,2 Km
Anna Maria
1,2 Km
Ristoranti Ristoranti
Preccati di gola
1,3 Km
Mamma Rosa
2,2 Km
Mostra tutto

Caratteristiche

Rif.:
61147385
Piano:
3 di 4 (Piano alto)
Balconi:
1
Camere da letto:
3
Arredamento:
Assente
Condizionamento:
Autonomo
Mostra tutto
Prezzo Prezzo
€ 110.000
Prezzo box Prezzo box
€ 1
Rata mutuo Rata mutuo
€ 519 / mese
Spese annue Spese annue
€ 1
Proponi il tuo prezzoProponi il tuo prezzo

Classe Energetica

G
G
G
G
G
G
G
G
G
Anno di costruzione:
1986
Riscaldamento:
Autonomo
Tipo impianto:
A radiatori
Tipo alimentazione:
Metano

Prezzo ridotto di €1 (9%%)

Ti interessa visionare l'immobile?

Fissa un appuntamento  Fissa un appuntamento

Richiedi informazioni

Clicca su Leggi per aprire l'informativa
* Questi campi sono obbligatori

Calcola il tuo mutuo

Semplice e senza impegno
Anticipo

( % )
Mutuo

( % )

pochi semplici passi

inserisci i tuoi dati
Questionario completato
Grazie per aver richiesto un appuntamento senza impegno con un nostro Consulente del Credito e Assicurativo.

Hai inserito correttamente tutti i dati necessari e a breve riceverai una e-mail con un link da convalidare per inviare i tuoi dati.
Affiliato
Balestrate Casa Srl
Via Madonna del Ponte, 50 90041 Balestrate (PA)

Il nostro staff


  • Giorgio Contino
    Collaboratore

  • Irene Lumetta
    Coordinatrice

  • Maria Elena Galante
    Affiliata
Via Madonna del Ponte, 50 90041 Balestrate (PA)
Zona: Balestrate
Mostra su mappa
Orari: Dal Lunedì al Venerdì 09:00 -13:00 15:30 - 19:30 Sabato 09:00- 13:00
Affiliato
Balestrate Casa Srl
Via Madonna del Ponte, 50 90041 Balestrate (PA)

2026 Tecnocasa Franchising S.p.A. - P. IVA 08365160152 - Via Monte Bianco 60/A 20089 Rozzano (MI). Ogni agenzia ha un proprio titolare ed è autonoma. Privacy policy | Policy utilizzo | Cookie policy