Villa singola in vendita

Partinico, Via Panorama
€ 115.000
4 locali 4 locali
90 Mq 90 Mq
2 bagni 2 bagni

Villa singola in vendita

Partinico, Via Panorama

Descrizione annuncio

Proponiamo la vendita di un immobile indipendente da ristrutturare a pochissimi metri dal comune di Trappeto e le sue spiagge dorate.

La casa è distribuita su due livelli;
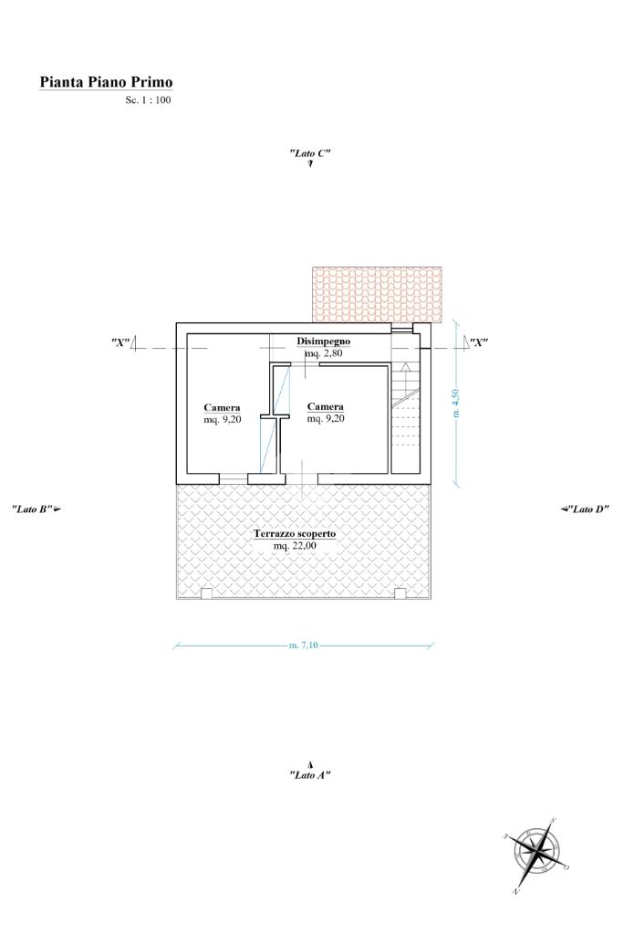
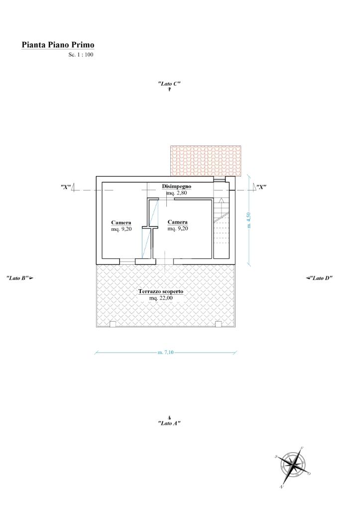
al piano terra vi sono cucina soggiorno e bagno, tramite una scala interna si accede al primo piano ove sono presenti due camere da letto e un disimpegno.

E' presente un terrazzo per livello, uno dei quali gode di vista mare.

L'immobile avrà un accesso indipendente e terreno di pertinenza esclusivo.

E' possibile visionarlo tutti i gioni tramite appuntameno telefonico chiamando o inviando un messaggio tramite Whatsapp al nostro numero 3886506192. Il nostro franchising mette a disposizione dei propri clienti un consulente che si occupa della mediazione creditizia ed assicurativa.
Contattateci se volete richiedere una consulenza gratuita per sapere quale sia la scelta più adatta alle vostre esigenze.

Mostra tutto

Nelle vicinanze

Trasporto pubblico Trasporto pubblico
Trappeto
Trappeto
2,4 Km
Trasporto pubblico
2,1 Km
Scuole Scuole
Istituto Comprensivo Rettore Filippo Evola - plesso Danilo Dolci
2,0 Km
Farmacia Farmacia
Farmacia Gioia
2,4 Km
Supermercati Supermercati
Maxi Like
2,3 Km
Negozi Negozi
Pallazzolo
2,2 Km
Cavataio
2,3 Km
Canfora
2,3 Km
D'Asaro Mario
2,4 Km
I Sapori del Grano
2,5 Km
Bar Bar
Cocktail Pub
2,6 Km
Ristoranti Ristoranti
Ristorante Mirage
1,1 Km
Pam Pam Pizzeria
1,2 Km
Il Veliero
2,3 Km
Lo Buindo
2,3 Km
La Vela
2,5 Km
Mostra tutto

Caratteristiche

Rif.:
61100768
Piano:
1 di 2 (Piano su più livelli)
Posti auto:
4
Terrazzi:
1
Camere da letto:
2
Arredamento:
Assente
Mostra tutto
Prezzo Prezzo
€ 115.000
Prezzo box Prezzo box
€ 1
Rata mutuo Rata mutuo
€ 510 / mese
Spese annue Spese annue
€ 1
Proponi il tuo prezzoProponi il tuo prezzo
Immobile valutato con TecnoValore

Classe Energetica

G
G
G
G
G
G
G
G
G
Anno di costruzione:
1970
Riscaldamento:
Autonomo
Tipo impianto:
Ad aria
Tipo alimentazione:
Aria

Ti interessa visionare l'immobile?

Fissa un appuntamento  Fissa un appuntamento

Richiedi informazioni

* Questi campi sono obbligatori

Calcola il tuo mutuo

Semplice e senza impegno
Anticipo

( % )
Mutuo

( % )

pochi semplici passi

inserisci i tuoi dati
Questionario completato
Grazie per aver richiesto un appuntamento senza impegno con un nostro Consulente del Credito e Assicurativo.

Hai inserito correttamente tutti i dati necessari e a breve riceverai una e-mail con un link da convalidare per inviare i tuoi dati.
Affiliato
Balestrate Casa Srl
Via Madonna del Ponte, 50 90041 Balestrate (PA)

Il nostro staff


  • Maria Elena Galante
    Affiliata
Via Madonna del Ponte, 50 90041 Balestrate (PA)
Zona: Balestrate
Mostra su mappa
Orari: Dal Lunedì al Venerdì 09:00 -13:00 15:30 - 19:30 Sabato 09:00- 13:00
Affiliato
Balestrate Casa Srl
Via Madonna del Ponte, 50 90041 Balestrate (PA)

2025 Tecnocasa Franchising S.p.A. - P. IVA 08365160152 - Via Monte Bianco 60/A 20089 Rozzano (MI). Ogni agenzia ha un proprio titolare ed è autonoma. Privacy policy | Policy utilizzo | Cookie policy