Villa singola in vendita

Partinico, Contrada Passerello
€ 220.000
3 locali 3 locali
88 Mq 88 Mq
2 bagni 2 bagni

Villa singola in vendita

Partinico, Contrada Passerello

Descrizione annuncio

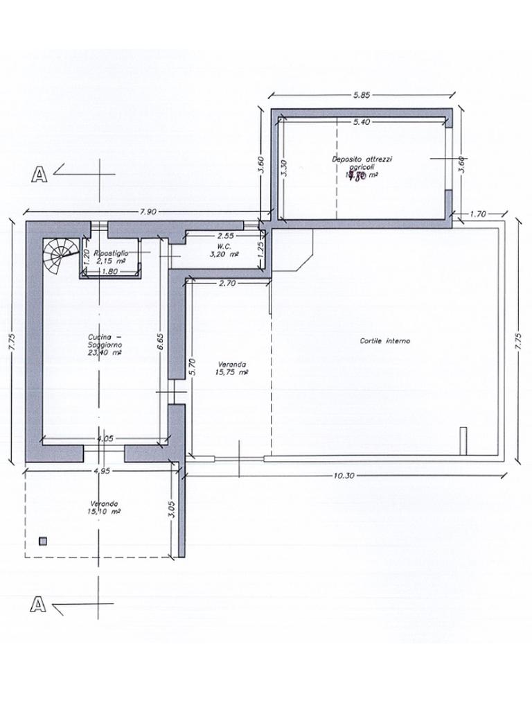
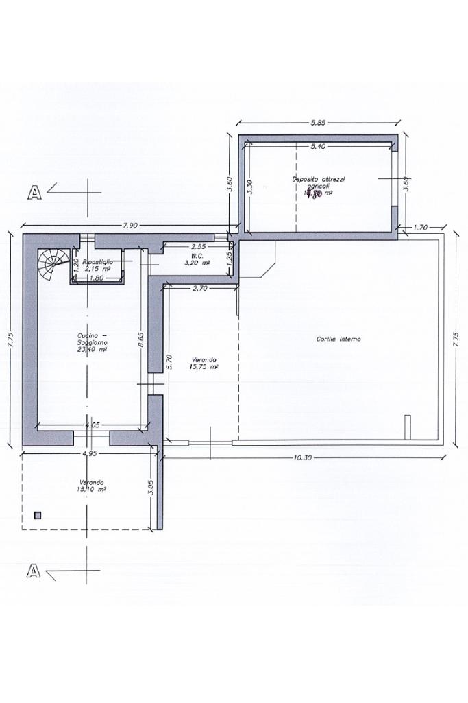
Nei pressi del Santuario della Madonna del Ponte e nelle vicinanze dello svincolo autostradale di Balestrate, fabbricato indipendente su due livelli.

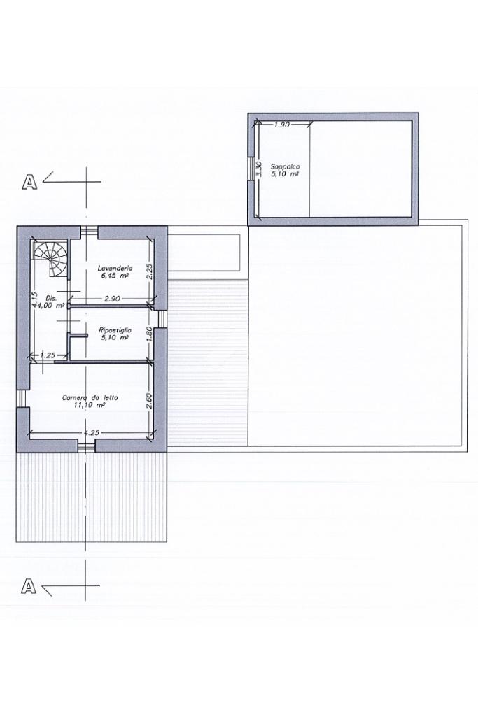
L'immobile è composto da piano terra e primo collegati tra loro con una scala a chiocciola interna.

Al piano terra troviamo ripostiglio, bagno e cucina soggiorno adiacente ad un cortile interno ove è presente un antico forno a legna ancora funzionante, mentre al primo piano vi è la zona notte.

E' possibile ampliare gli spazi realizzando una tettoia in legno e chiusura con vetrate nel cortile di pertinenza o in alternativa demolire e ricostruire l'immobile potendone anche modificare la posizione all'interno del lotto.

L'immobile, situato in una zona tranquilla e riservata, si trova nelle condizioni originali ed è circondato da due ettari e mezzo circa di terreno coltivato con alberi.

È possibile visionare l’immobile tutti i giorni previo appuntamento telefonico, chiamando o inviando un messaggio WhatsApp ai numeri indicati.

Il nostro franchising mette a disposizione dei propri clienti un consulente specializzato nella mediazione creditizia e assicurativa.

Contattateci per richiedere una consulenza gratuita e scoprire la soluzione più adatta alle vostre esigenze.

Mostra tutto

Nelle vicinanze

Trasporto pubblico Trasporto pubblico
Balestrate
Balestrate
2,8 Km
Trasporto pubblico
2,5 Km
Scuole Scuole
Istituto Comprensivo Rettore Filippo Evola - plesso Professor Domenico Tuzzo
2,4 Km
Istituto Comprensivo Rettore Filippo Evola - plesso Aldo Moro
2,7 Km
Istituto Comprensivo Rettore Filippo Evola
2,8 Km
Farmacia Farmacia
D'Arrigo Antonina
2,6 Km
Supermercati Supermercati
Conad
2,8 Km
Sisa
2,8 Km
Negozi Negozi
TRINITY SPOSI
2,2 Km
Fashion Store
2,7 Km
Mariagrazia Albano
2,7 Km
Negozi
2,7 Km
Panificio Mulè
2,8 Km
Bar Bar
Bar
1,3 Km
Ristoranti Ristoranti
Case Ragona
1,9 Km
Ristoranti
2,6 Km
La Buona Forchetta
2,7 Km
Pizzeria Ciro
2,8 Km
Eo Winebar
2,8 Km
Mostra tutto

Caratteristiche

Rif.:
61104957
Piano:
1 di 2 (Piano terra con giardino)
Posti auto:
5
Balconi:
1
Terrazzi:
1
Camere da letto:
2
Mostra tutto
Prezzo Prezzo
€ 220.000
Prezzo box Prezzo box
€ 1
Rata mutuo Rata mutuo
€ 1.037 / mese
Spese annue Spese annue
€ 1
Proponi il tuo prezzoProponi il tuo prezzo

Classe Energetica

G
G
G
G
G
G
G
G
G
Anno di costruzione:
1950
Riscaldamento:
Autonomo
Tipo impianto:
Ad aria
Tipo alimentazione:
Aria

Ti interessa visionare l'immobile?

Fissa un appuntamento  Fissa un appuntamento

Richiedi informazioni

Clicca su Leggi per aprire l'informativa
* Questi campi sono obbligatori

Calcola il tuo mutuo

Semplice e senza impegno
Anticipo

( % )
Mutuo

( % )

pochi semplici passi

inserisci i tuoi dati
Questionario completato
Grazie per aver richiesto un appuntamento senza impegno con un nostro Consulente del Credito e Assicurativo.

Hai inserito correttamente tutti i dati necessari e a breve riceverai una e-mail con un link da convalidare per inviare i tuoi dati.
Affiliato
Balestrate Casa Srl
Via Madonna del Ponte, 50 90041 Balestrate (PA)

Il nostro staff


  • Giorgio Contino
    Collaboratore

  • Valentina Caruso
    Coordinatrice

  • Simona Previti
    Collaboratrice

  • Maria Elena Galante
    Affiliata
Via Madonna del Ponte, 50 90041 Balestrate (PA)
Zona: Balestrate
Mostra su mappa
Orari: Dal Lunedì al Venerdì 09:00 -13:00 15:30 - 19:30 Sabato 09:00- 13:00
Affiliato
Balestrate Casa Srl
Via Madonna del Ponte, 50 90041 Balestrate (PA)

2026 Tecnocasa Franchising S.p.A. - P. IVA 08365160152 - Via Monte Bianco 60/A 20089 Rozzano (MI). Ogni agenzia ha un proprio titolare ed è autonoma. Privacy policy | Policy utilizzo | Cookie policy